您現在所在位置:大田閥門 >> 襯氟閥門(襯里閥門)
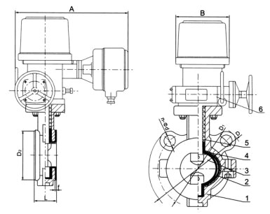
D971(半襯)、D971Fs(全襯)電動對夾襯氟塑料蝶閥專用于控制非腐蝕性或強腐蝕性介質,閥體內腔表面覆有可供選擇的各種氟塑料,適用于不同工作溫度和流體管路。
具有強度高、耐腐蝕性能好的特點。
適用溫度:≤100℃、≤120℃、≤150℃、(可按照襯里材料)
壓力等級:0.6、1.0、1.6
1、閥體2、蝶圈3、蝶板4、四氟圈5、電動裝置

| 公稱通徑 | L mm |
D mm |
D1 mm |
D2 mm |
n-Фd mm |
f mm |
A mm |
B mm |
|
|---|---|---|---|---|---|---|---|---|---|
| DN | NPS | 1.0 | 1.0 | 1.0 | 1.0 | ||||
| 40 | 11/2 | 43 | 150 | 110 | 88 | 4-18 | 3 | 162 | 187 |
| 50 | 2 | 43 | 165 | 125 | 93 | 4-18 | 3 | 162 | 187 |
| 65 | 21/2 | 46 | 185 | 145 | 106 | 4-18 | 3 | 162 | 187 |
| 80 | 3 | 46 | 200 | 160 | 123 | 4-18 | 3 | 162 | 187 |
| 100 | 4 | 52 | 220 | 180 | 150 | 8-18 | 3 | 162 | 187 |
| 125 | 5 | 56 | 250 | 210 | 172 | 8-18 | 3 | 162 | 187 |
| 150 | 6 | 56 | 285 | 240 | 198 | 8-23 | 3 | 409 | 513 |
| 200 | 8 | 60 | 340 | 295 | 252 | 8-23 | 3 | 409 | 513 |
| 250 | 10 | 68 | 395 | 350 | 320 | 12-23 | 3 | 409 | 513 |
| 300 | 12 | 78 | 445 | 400 | 368 | 12-23 | 4 | 409 | 513 |
| 350 | 14 | 78 | 505 | 460 | 428 | 16-23 | 4 | 409 | 513 |
| 400 | 16 | 102 | 565 | 515 | 482 | 16-25 | 4 | 409 | 513 |
| 450 | 18 | 114 | 620 | 565 | 532 | 20-25 | 4 | 409 | 513 |
| 500 | 20 | 127 | 670 | 620 | 585 | 20-25 | 4 | 409 | 513 |
| 600 | 24 | 154 | 780 | 725 | 685 | 20-30 | 5 | 409 | 513 |
| 700 | 28 | 165 | 895 | 5 | 409 | 513 | |||
| 800 | 32 | 190 | 1010 | 5 | 409 | 563 | |||
| 900 | 36 | 203 | 1110 | 5 | 409 | 563 | |||
| 1000 | 40 | 216 | 1220 | 5 | 409 | 563 | |||
| 1200 | 48 | 254 | 1450 | 5 | 409 | 563 | |||
溫馨提示:
本文中所有文字、數據、圖片均只適用于參考。需要查看更多的D971(半襯)、D971Fs(全襯)電動對夾襯氟塑料蝶閥性能參數、結構尺寸參數、價格等詳情,或要求印刷樣本,請聯系我們。
主營產品:氣動調節閥 - 電動調節閥 - 自力式調節閥
版版權所有 © 上海大田閥門管道工程有限公司
地址:上海市浦東新區川宏路528號宏圖大樓5樓
